Mátra Mûvelõdési Központ Praesepe Csillagász Kör Közhasznú Egyesület – SZJA 1%
 

A Csillagászati Évhez kapcsolódóan közhasznú egyesületünk egy bemutató csillagvizsgáló megvalósítását tûzte ki célul. Az itt tökéletesen beállított távcsõ segítségével sokkal könnyebbé, egyszerûbbé válhatnának bemutatóink - nem kellene minden egyes alkalomkor kitelepülni, majd a bemutató végeztével összepakolni - több idõ maradna az ismeretek átadására, látványos égi objektumok bemutatására. Az emberekben az Univerzumról alkotott képet színesebbé szeretnénk tenni. Ezzel látogatóink jobban el tudják képzelni a Földünket körülvevõ világot.



Az elõzõ évi adó 1%-a segített, hogy a csillagda ne csak álom maradjon, hanem elinduljon a megvalósulás útján. Jelenleg a tervek az engedélyeztetésre várnak, s ha minden jól megy az idén nekikezdhetünk az építkezéshez. Sajnos a kupolára már nem lesz elég a forrásunk. EZÉRT KÉRJÜK EBBEN AZ ÉVBEN IS TÁMOGASSON BENNÜNKET!

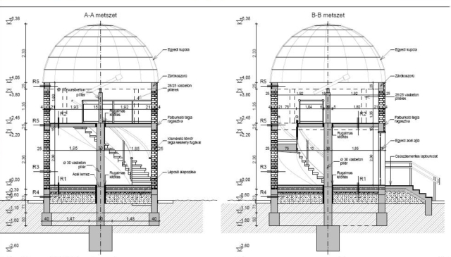
Az engedélyeztetés alatt álló csillagvizsgáló részlete.


Amennyiben a Praesepe Csillagász Kör ügyét méltónak tartja a felkarolásra, kérjük, éves adóbevallása megtételekor az 1%-ot a Mátra Mûvelõdési Központ Praesepe Csillagász Kör Közhasznú Egyesület javára ajánlja fel! A „Rendelkezõ nyilatkozat” kitöltéséhez szükséges adószámunk: 18588268-1-10.

Egy elõre elkészített „Rendelkezõi nyilatkozat a befizetett adó 1%-áról” innen tölthetõ le.
Sokat segíthet azzal is, ha barátai, ismerõsei, kollégái figyelmét felhívja erre a támogatási módra, illetve a Mátra Mûvelõdési Központ Praesepe Csillagász Kör Közhasznú Egyesületet a figyelmükbe ajánlja. Köszönjük, hogy egyesületünket tiszteli meg adója 1%-ával, és ezzel támogatja a csillagda megépítését, illetve csillagászati ismeretterjesztésünket.