![]() |
TZM 11 Mérnöki Iroda Kft. |
| Munkáink | Centrifugál adagoló |
Hidraulika
munkahengerek, tápegységek |
Galéria |
Partnerek,
kedvencek |
Főoldal |
|
Tervezünk és mérünk
|
![]() Öncélú gyors csapágyméretező
|
![]() Tekercselő számítások
|
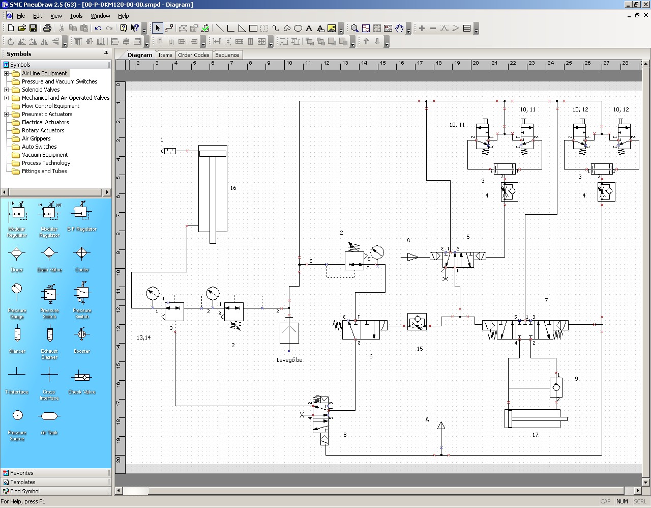
![]() Pneumatikus kapcsolásterv
|
![]() Gépészeti CAD tervezés
|
![]() Pneumatikus kapcsolás
tesztösszeállítás
|
|
Munkahenger javítás
|
|
Hidraulika javítás 1
|
|
Hidraulika javítás 2
|
![]() Ragasztási próbák
|